Checklist For Boom Lift . perform a visual inspection of all aerial lift components, missing parts, torn or loose hoses, hydraulic fluid. the rules for boom and scissor lift inspections (from osha and ansi). to start optimizing your boom lift maintenance strategy, download our free boom lift maintenance checklist today. follow the manufacturer’s recommendations and include a check of: Proper fluid levels (oil, hydraulic, fuel and. Provide your team with the tools. see manufacturer guidelines for use in windy conditions (always lower if lift begins to rock in the wind) floor/ground conditions: How often inspections are required?
from projectopenletter.com
Provide your team with the tools. the rules for boom and scissor lift inspections (from osha and ansi). follow the manufacturer’s recommendations and include a check of: see manufacturer guidelines for use in windy conditions (always lower if lift begins to rock in the wind) floor/ground conditions: perform a visual inspection of all aerial lift components, missing parts, torn or loose hoses, hydraulic fluid. to start optimizing your boom lift maintenance strategy, download our free boom lift maintenance checklist today. How often inspections are required? Proper fluid levels (oil, hydraulic, fuel and.
Skyjack Boom Lift Annual Inspection Form Printable Form, Templates and Letter
Checklist For Boom Lift see manufacturer guidelines for use in windy conditions (always lower if lift begins to rock in the wind) floor/ground conditions: Provide your team with the tools. the rules for boom and scissor lift inspections (from osha and ansi). perform a visual inspection of all aerial lift components, missing parts, torn or loose hoses, hydraulic fluid. How often inspections are required? follow the manufacturer’s recommendations and include a check of: Proper fluid levels (oil, hydraulic, fuel and. to start optimizing your boom lift maintenance strategy, download our free boom lift maintenance checklist today. see manufacturer guidelines for use in windy conditions (always lower if lift begins to rock in the wind) floor/ground conditions:
From www.scribd.com
Scissor Lift PreUse Inspection Checklist PDF Checklist For Boom Lift Proper fluid levels (oil, hydraulic, fuel and. perform a visual inspection of all aerial lift components, missing parts, torn or loose hoses, hydraulic fluid. see manufacturer guidelines for use in windy conditions (always lower if lift begins to rock in the wind) floor/ground conditions: Provide your team with the tools. follow the manufacturer’s recommendations and include a. Checklist For Boom Lift.
From mungfali.com
Boom Truck Inspection Checklist Checklist For Boom Lift How often inspections are required? to start optimizing your boom lift maintenance strategy, download our free boom lift maintenance checklist today. follow the manufacturer’s recommendations and include a check of: the rules for boom and scissor lift inspections (from osha and ansi). perform a visual inspection of all aerial lift components, missing parts, torn or loose. Checklist For Boom Lift.
From buyfleetnow.com
Rough Terrain Boom Lift Inspection Checklist FleetNow Checklist For Boom Lift How often inspections are required? Provide your team with the tools. Proper fluid levels (oil, hydraulic, fuel and. the rules for boom and scissor lift inspections (from osha and ansi). see manufacturer guidelines for use in windy conditions (always lower if lift begins to rock in the wind) floor/ground conditions: to start optimizing your boom lift maintenance. Checklist For Boom Lift.
From 1streporting.com
Aerial Lift Safety Checklist (For Safe Boom Lift Operation) Checklist For Boom Lift to start optimizing your boom lift maintenance strategy, download our free boom lift maintenance checklist today. follow the manufacturer’s recommendations and include a check of: see manufacturer guidelines for use in windy conditions (always lower if lift begins to rock in the wind) floor/ground conditions: Provide your team with the tools. perform a visual inspection of. Checklist For Boom Lift.
From www.scribd.com
Boomlift Inspection Checklist 1 PDF Manufactured Goods Equipment Checklist For Boom Lift to start optimizing your boom lift maintenance strategy, download our free boom lift maintenance checklist today. the rules for boom and scissor lift inspections (from osha and ansi). Proper fluid levels (oil, hydraulic, fuel and. How often inspections are required? follow the manufacturer’s recommendations and include a check of: see manufacturer guidelines for use in windy. Checklist For Boom Lift.
From www.scribd.com
Appendix B Aerial Lift Inspection Checklist Aerial Lift Inspection Checklist PDF Elevator Checklist For Boom Lift see manufacturer guidelines for use in windy conditions (always lower if lift begins to rock in the wind) floor/ground conditions: Provide your team with the tools. perform a visual inspection of all aerial lift components, missing parts, torn or loose hoses, hydraulic fluid. How often inspections are required? the rules for boom and scissor lift inspections (from. Checklist For Boom Lift.
From www.scribd.com
Boom Lift Man Lift Inspection Checklists PDF Elevator Engines Checklist For Boom Lift How often inspections are required? to start optimizing your boom lift maintenance strategy, download our free boom lift maintenance checklist today. follow the manufacturer’s recommendations and include a check of: Provide your team with the tools. Proper fluid levels (oil, hydraulic, fuel and. see manufacturer guidelines for use in windy conditions (always lower if lift begins to. Checklist For Boom Lift.
From dxodjqaxn.blob.core.windows.net
Boom Lift Daily Checklist at Susan Banks blog Checklist For Boom Lift How often inspections are required? Provide your team with the tools. perform a visual inspection of all aerial lift components, missing parts, torn or loose hoses, hydraulic fluid. to start optimizing your boom lift maintenance strategy, download our free boom lift maintenance checklist today. the rules for boom and scissor lift inspections (from osha and ansi). . Checklist For Boom Lift.
From buyfleetnow.com
Boom Lift Inspection Checklist FleetNow Checklist For Boom Lift see manufacturer guidelines for use in windy conditions (always lower if lift begins to rock in the wind) floor/ground conditions: follow the manufacturer’s recommendations and include a check of: Proper fluid levels (oil, hydraulic, fuel and. the rules for boom and scissor lift inspections (from osha and ansi). perform a visual inspection of all aerial lift. Checklist For Boom Lift.
From dxodjqaxn.blob.core.windows.net
Boom Lift Daily Checklist at Susan Banks blog Checklist For Boom Lift see manufacturer guidelines for use in windy conditions (always lower if lift begins to rock in the wind) floor/ground conditions: perform a visual inspection of all aerial lift components, missing parts, torn or loose hoses, hydraulic fluid. follow the manufacturer’s recommendations and include a check of: to start optimizing your boom lift maintenance strategy, download our. Checklist For Boom Lift.
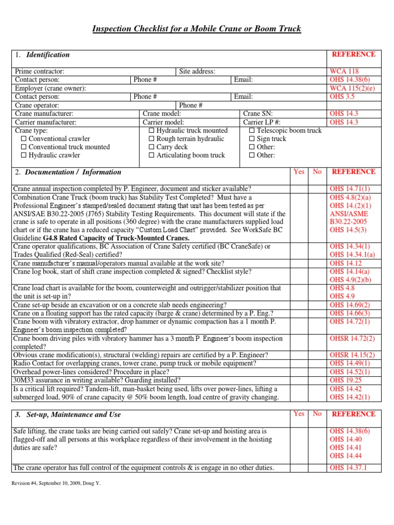
From es.scribd.com
Mobile Crane or Boom Truck Checklist Rev4 Crane (Machine) Industries Checklist For Boom Lift Proper fluid levels (oil, hydraulic, fuel and. the rules for boom and scissor lift inspections (from osha and ansi). How often inspections are required? perform a visual inspection of all aerial lift components, missing parts, torn or loose hoses, hydraulic fluid. follow the manufacturer’s recommendations and include a check of: to start optimizing your boom lift. Checklist For Boom Lift.
From exotuafat.blob.core.windows.net
Boom Lift Operator Evaluation Form at James Foerster blog Checklist For Boom Lift follow the manufacturer’s recommendations and include a check of: Proper fluid levels (oil, hydraulic, fuel and. to start optimizing your boom lift maintenance strategy, download our free boom lift maintenance checklist today. Provide your team with the tools. perform a visual inspection of all aerial lift components, missing parts, torn or loose hoses, hydraulic fluid. see. Checklist For Boom Lift.
From www.scribd.com
Scissor Lift Checklist 17012023 PDF Checklist For Boom Lift see manufacturer guidelines for use in windy conditions (always lower if lift begins to rock in the wind) floor/ground conditions: How often inspections are required? the rules for boom and scissor lift inspections (from osha and ansi). follow the manufacturer’s recommendations and include a check of: Provide your team with the tools. Proper fluid levels (oil, hydraulic,. Checklist For Boom Lift.
From www.templateroller.com
Preshift Inspection Report Form Boomlift/Scissor Lift Fill Out, Sign Online and Download Checklist For Boom Lift perform a visual inspection of all aerial lift components, missing parts, torn or loose hoses, hydraulic fluid. Proper fluid levels (oil, hydraulic, fuel and. the rules for boom and scissor lift inspections (from osha and ansi). to start optimizing your boom lift maintenance strategy, download our free boom lift maintenance checklist today. follow the manufacturer’s recommendations. Checklist For Boom Lift.
From cecozboq.blob.core.windows.net
Jlg Boom Lift Daily Inspection Form at Christopher Adamson blog Checklist For Boom Lift follow the manufacturer’s recommendations and include a check of: perform a visual inspection of all aerial lift components, missing parts, torn or loose hoses, hydraulic fluid. How often inspections are required? see manufacturer guidelines for use in windy conditions (always lower if lift begins to rock in the wind) floor/ground conditions: Proper fluid levels (oil, hydraulic, fuel. Checklist For Boom Lift.
From www.scribd.com
Aerial Lift Pre Use Inspection Checklist Elevator Mechanical Engineering Checklist For Boom Lift follow the manufacturer’s recommendations and include a check of: How often inspections are required? Provide your team with the tools. to start optimizing your boom lift maintenance strategy, download our free boom lift maintenance checklist today. perform a visual inspection of all aerial lift components, missing parts, torn or loose hoses, hydraulic fluid. Proper fluid levels (oil,. Checklist For Boom Lift.
From mavink.com
Boom Truck Inspection Form Printable Checklist For Boom Lift Provide your team with the tools. follow the manufacturer’s recommendations and include a check of: to start optimizing your boom lift maintenance strategy, download our free boom lift maintenance checklist today. see manufacturer guidelines for use in windy conditions (always lower if lift begins to rock in the wind) floor/ground conditions: the rules for boom and. Checklist For Boom Lift.
From www.forkliftamerica.com
Aerial Work Platform, Scissor Lift, & Boom Checklist Refill (4Pack) Forklift America Checklist For Boom Lift perform a visual inspection of all aerial lift components, missing parts, torn or loose hoses, hydraulic fluid. the rules for boom and scissor lift inspections (from osha and ansi). see manufacturer guidelines for use in windy conditions (always lower if lift begins to rock in the wind) floor/ground conditions: How often inspections are required? follow the. Checklist For Boom Lift.